Check out what we're doing right now!!!

fresh news:

SNY

 

Transformation et agrandissement d’une grange à Granges-Paccot

 

2024 |  achevé

 

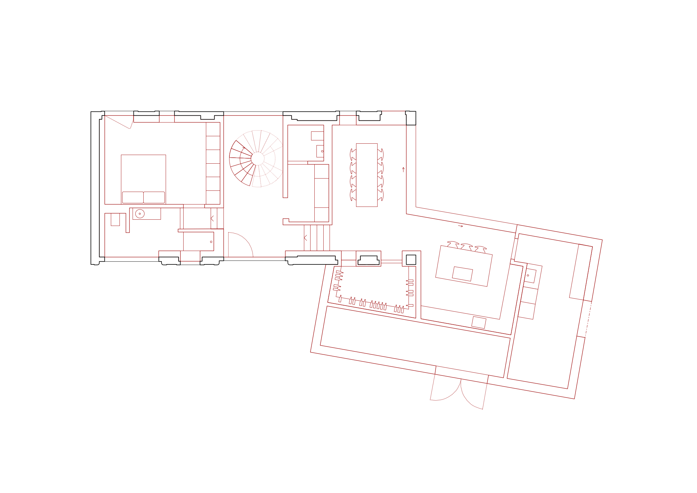
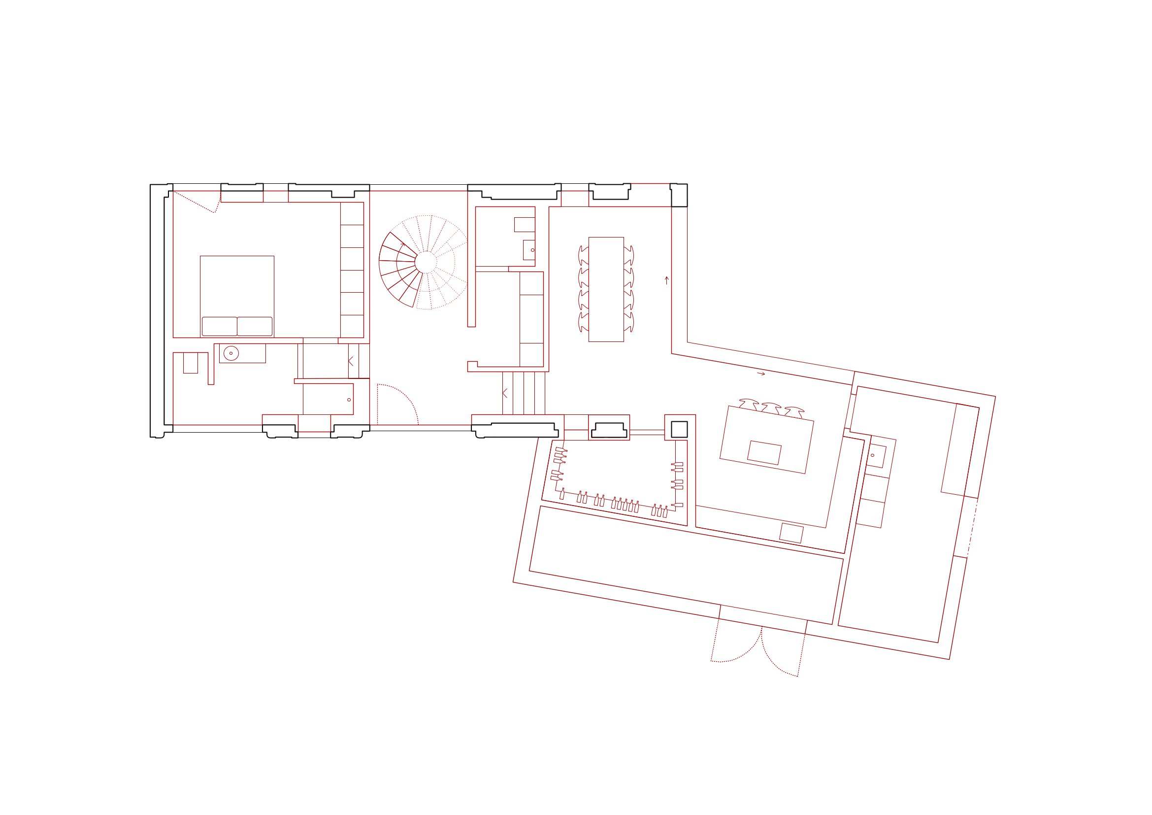
L’intervention s’appuie sur une observation précise de la substance existante ainsi que sur la volonté assumée de mettre en valeur les éléments conservés. La nouvelle habitation en construction bois est insérée dans le volume contenu à l’intérieur de la structure existante. L’intervention tire parti de sa tripartition. La tranche centrale, par laquelle on entre dans la nouvelle habitation, distribue de part et d’autre des travées réservées aux espaces de nuit et aux espaces de jour. Le volume de la grange est complété par un agrandissement dont l’implantation libère un espace réservé à un petit jardin privatif. Le léger angle donné à l’agrandissement marque la distinction entre intervention nouvelle et structure ancienne. Les nouvelles façades, constituant l’enveloppe thermique de l’habitation, sont placées en retrait de la structure existante. Teintées de noir, elles forment l’arrière-plan d’une « nature morte » mettant en lumière le tracé de la charpente ancienne.

 

Photo Credit: R. Magnin